Меню
Шевченківський район

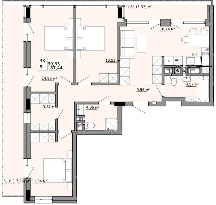
3 кімнатна квартира вул Орлика

  • 3 кімнат
  • 87 м²
  • 3 з 5
3 588 700,00 грн
Катерина Бондаренко Спеціаліст з оренди
Опис

Продається квартира я власник. Здача кінець 26 року. Квартира 3 кімнати, кухня 2 санвузли + 2 тераси площею 17 та 5,5 квадратних метри. Договір переуступки.

Рекомендовано для Вас