Меню
Брюховичі

Котедж (Брюховичі, Львів) Ліс, Комунікації, інфраструктура!

  • 3 кімнат
  • 3 м²
7 058 370,00 грн
Наталія Беднарчик Спеціаліст з оренди
Опис

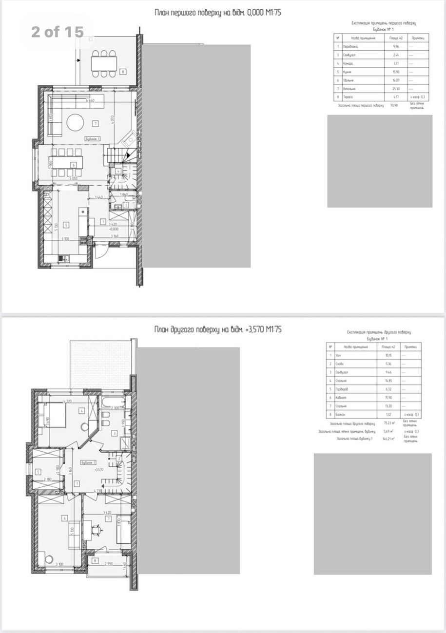
Продається частина дуплексу в сучасному стилі (146,36 м²) , з унікальним розташуванням, а саме: у Брюховичах, поряд з лісом!!! вул. Бірківська 8. Ціна: 160600 $ ( 1100 $ за 1 м.кв.) Від дуплексів до пл. Ринок — 13 км, до ТЦ «Спартак» — 10 хв. Класно розвинена інфраструктура району, а саме: від 500м до 1 км розташовані магазини («Аврора»; «Близенько»; «Сім23»; та ін.), великий торговий ряд з пекарнями, торговими лавками, аптеками, зоомагазинами то ін.; загальноосвітня ШКОЛА № 41, музична школа № 7, інші секції для дітей: англійська мова, цифрові технології, спорт; перукарні тощо. Приватизована ділянка 0,0336 га на тихій вулиці. Площа будинку– 146,36 м² Висота стелі 1-го поверху – 3,20 м², 2-го поверху – 2,80 м²,а також дуплекс має своє ізольоване горище. Наявні централізовані мережі, а саме: водопостачання, водовідведення, електроенергія (1 фаза, 8 кВт для кожного будинку окремо), газопостачання. Технічні характеристики: • Фундамент – монолітний (бетон М 300) та монолітна плита 18 см (бетон М 250) . • Цегла – керамоблок (М 150). • Перекриття 1-2 поверх та 2 поверх-горище - монолітне 16 см (бетон М 350) • Покрівля – фальцева, металева, 4-скатна. • Сходова клітка – монолітна. • Фасад утеплено пінопластом (15 см) та виконано з декоративної штукатурки. • Вікна та балконні/терасні двері енергозберігаючі, 6-камерні, з подвійним склопакетом. З вітальні кожного будинку є вихід на задній дворик з літньою терасою, а також наявні балкони на 2-му поверсі з панорамою на лісосмугу. • Огорожа – металева, з відкатною брамою для заїзду авто та окремою хвірткою. • Наявні вентиляційні виходи під каміни. Планування будинку (146, 36 м²) 1й поверх:
 передпокій - 9,96 м²
 кухня-студія – 55,78 м²
 санвузол – 2,44 м²
 комора – пральня – 3,31 м² 2й поверх:
сходова клітка-хол – 13,96 м² мастер – бедрум – 15,38 м²
 гардероб – 6,33м²
 спальня – 15,90 м²
 спальня – 13,07 м²
 санвузол 10,23 м²

Рекомендовано для Вас