Меню
Гамаліївка

Продаж окремий будинок, будинок з терасою

  • 3 кімнат
  • 5 м²
5 311 721,00 грн
Катерина Бондаренко Спеціаліст з оренди
Опис

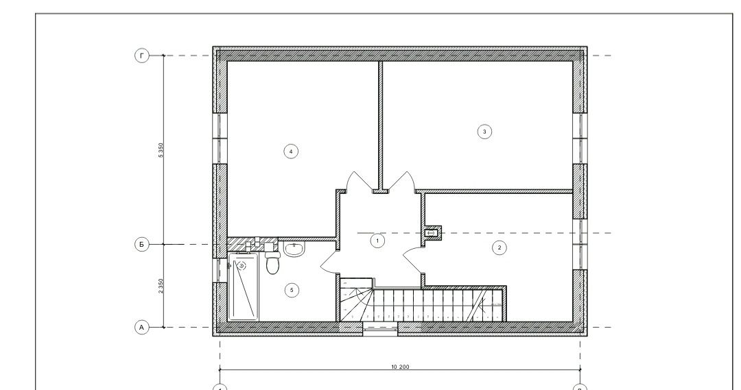
Можна під Є-ОСЕЛЯ , держ програми. -Продається двоповерховий будинок , збудований в 2024р. Знаходитьтся 7 км від Львова в Київському напрямку з приватизованою під ним зем. ділянкою. Доїзд асфальтована дорога та бруківка. -Загальна площа будинку 135кв.м, житлова 60 кв.м., кухня-студія 42.55 кв.м. Накрита тераса 15 м2 - На першому поверсі - кухня, вітальня з виходом під камін,, санвузол, гардероба. - Другий поверх - 3 ізольовані спальні ,санвузол. -Вікна - металопластик, 8-микамерний профіль , енергозберігаючі 2-охкамерні склопакети. -Стіни газоблок -Додатково - місце під камін на дрова - Вхідні металеві двері ,Abver -Електрика підключена 5 кВ - Власна свердловина(вода в будинку) -Газопостачання -Септик -З кухні-студії вихід на закриту терасу -Вікна будинку виходять у тихіий двір. - ВИМОЩЕННЕ БРУКІВКОЮ ПОДВІР'Я -Навколо розвинута інфраструктура (магазини 30м), до центру Львова 10 хвилин громадським транспортом

Рекомендовано для Вас