Меню
Зимна Вода

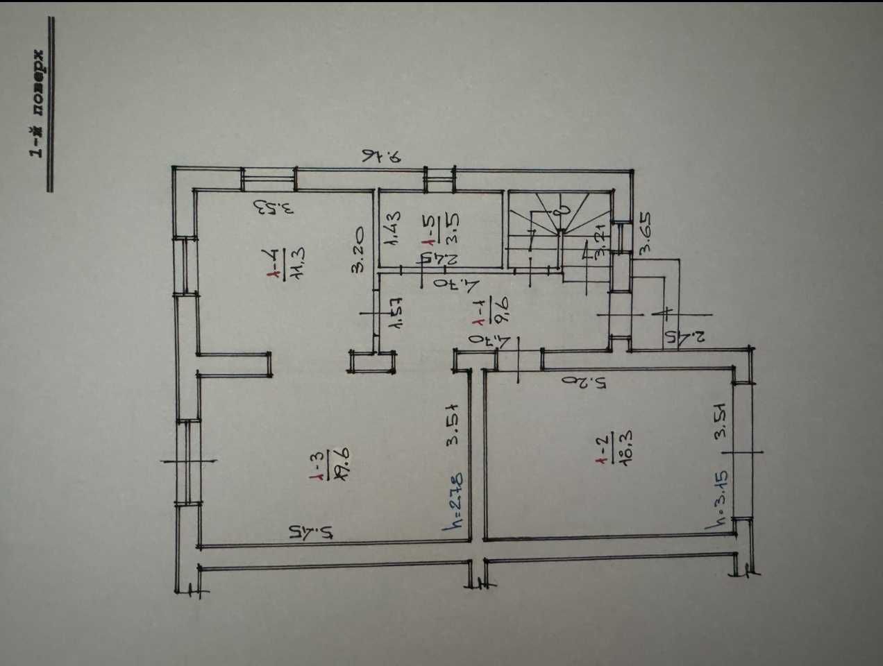
Продається цегляний 4 поверховий будинок від власника 830 м

  • 16 кімнат
  • 820 м²
16 758 000,00 грн
Орися Березюк Спеціаліст з оренди
Опис

[23.03.2026 15:48] Релтор: Продається просторий будинок з великим потенціалом у привабливій локації с. Зимна Вода Будинок побудований професійно на фундаментних блоках із виконаною гідроізоляцією. Перекриття – залізобетонні плити, додатково пов’язані між собою для максимальної монолітності та надійності конструкції. Стіни з повнотілої якісної червоної цегли. Об’єкт розташований на височині з мальовничим краєвидом, у тихій обжитій вулиці з хорошим оточенням. Зручна локація забезпечує швидкий доїзд до міста – лише 3 хвилини до Епіцентру та 5 хвилин до Метро. У будинок заведено електропостачання (3 фази, 380 В) та воду. Центральна каналізація підключена, газ проходить поруч із будинком. У цокольному поверсі розміщений гараж на 2 автомобілі та п’ять підсобних приміщень, які можна облаштувати під технічні або господарські потреби. Загальна площа будинку – 830 кв.м. Земельна ділянка – 20 соток із зручним заїздом. Будинок потребує ремонту, що дає можливість реалізувати індивідуальний проєкт та облаштувати простір повністю під себе або під інвестицію. Деталі за телефоном. [23.03.2026 16:06] Релтор: Котедж преміум-класу у закритому містечку «BRITISH VILLAGE» – одна з найкращих локацій передмістя Львова, с. Сокільники, кінець вул. Кульпарківської. Кутовий котедж із вигідним розташуванням та південною орієнтацією, що забезпечує максимальне природне освітлення протягом усього дня. Загальна площа – 185 кв.м, земельна ділянка – 2 сотки. Виконано грамотне перепланування, що дозволяє раціонально використовувати простір та створити сучасний, функціональний інтер’єр. Будинок збудований із якісних матеріалів із дотриманням високих стандартів будівництва: товщина стін – 40 см, утеплення фасаду – пінопласт 10 см, утеплення даху – 20 см. Перший поверх оздоблений натуральним каменем травертином, що підкреслює статусність та довговічність об’єкта. Підведені всі необхідні комунікації: електрика (15 кВт), газ, центральне водопостачання та водовідведення, швидкісний інтернет. Територія містечка закрита та доглянута, передбачені додаткові паркомісця. Локація поєднує тишу передмістя та зручність міської інфраструктури: поруч супермаркети, швидкий виїзд на південну об’їзну, лише 4 км до Victoria Gardens. Котедж готовий до ремонту, що дає можливість реалізувати індивідуальний дизайн-проєкт у престижному середовищі. Деталі за телефоном.0968896526

Рекомендовано для Вас