Меню
Франківський район

Трускавецька вул.

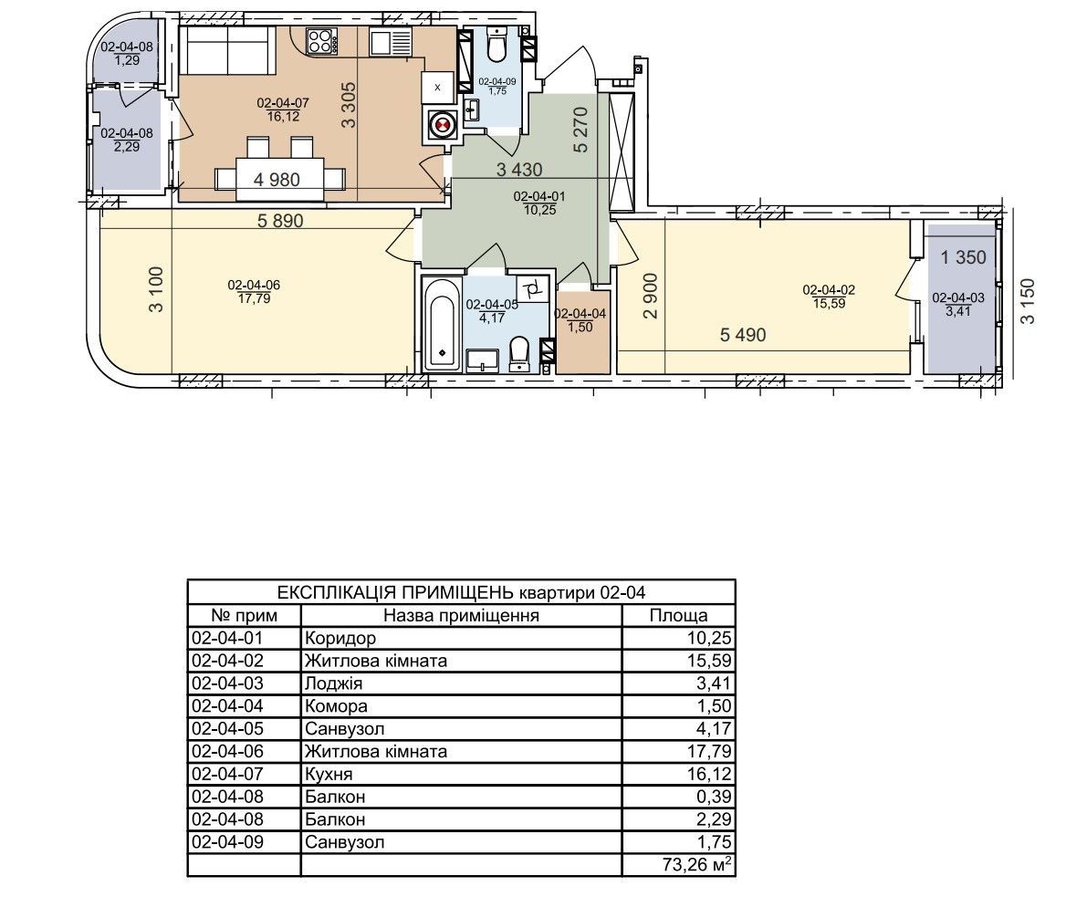
  • 1 кімнат
  • 20 м²
  • 10 з 12
866 000,00 грн
Кристина Ковальчук Спеціаліст з продажу та оренди
Опис

Продаж смарт-квартири(апартаменти) в новобудові вул. Трускавецька, ЖК Трускавецька Апарт Холл (забудовник Галжитлобуд), будинок B, збудований, здача на весні 2026, опалення дахова котельня, у будинку є підземний паркінг(сховище). Комплекс знаходиться за 10 хвилин пішки до дуже логістичного перехрестя Стрийська-Наукова. Біля будинку красиве озеро і парк. Сонячна квартира на 10-му поверсі з 12. Будинок перед нами нижчий і не заступає сонячні промені. По проекту міста по вулиці Трускавецькій повинен ходити трамвай, який з'єднуватиме Сихів-Автовокзал(Стрийська)-Залізничний вокзал. Продаж по переуступці, яка включена в ціну. ТЕРМІНОВО!

Рекомендовано для Вас