Меню
Личаківський район

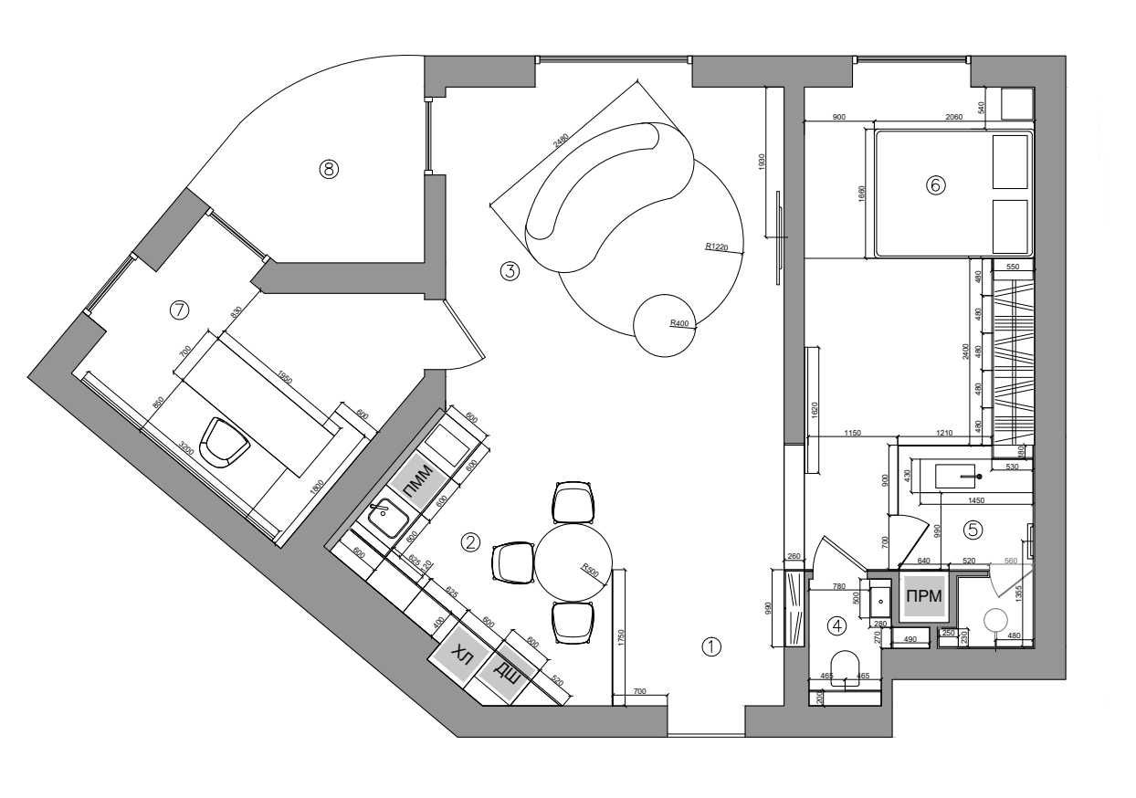
Оренда 2 кімнати та кухня студія у ЖК Вілла Магнолія на вул.Пасічна

  • 2 кімнат
  • 72 м²
  • 3 з 5
56 277,00 грн
Каріна Русєва Спеціаліст з продажу та оренди
Опис

Квартира в ЖК Вілла магнолія. Перша здача. Площа 72м.кв. Дизайнерський ремонт по індивідуальному проекту з меблями прихованого монтажу. Кухня студія, дві кімнати, туалет і душ окремо. Є тераса Опалення: підігрів підлоги з терморегулятором Фільтр на питну воду Ecosoft Вся побудова техніка: холодильник, духовка, мікрохвильовка, посудомийка, телевізор, пральна з сушкою 2 в 1, кондиціонер. Інтернет від біт та life. Все вживу таке ж як на фото. Парковка біля будинку зі шлангбаумом, ключ від шлагбауму надам. Закритий внутрішній двір та зовнішній. Низькоповерхова тиха будова 5-6 поверхів. Поруч близенько, сільпо, метро. Винниківський ліс. У будинку також знаходитья кав'ярня. В будинку і сусідніх можна зняти паркінг в оренду, але загалом запаркуватись завжди є де через низьку забудову. Без дітей і великих домашніх тварин. Я власник. Ціна $1300 + кп

Рекомендовано для Вас