Меню
Галицький район

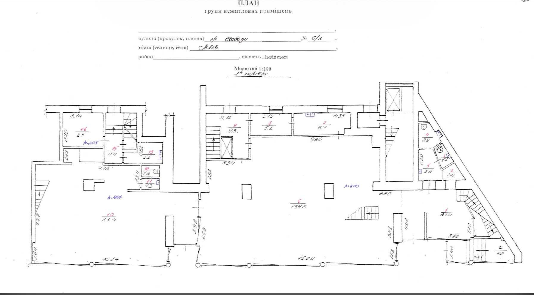
Продаж комерційного приміщення на Проспект Свободи 6

  • 10 кімнат
  • 830 м²
  • 1 з 8
242 550 000,00 грн
Наталія Беднарчик Спеціаліст з оренди
Опис

Продаж фасадного приміщення на першому поверсі в центрі міста, за адресою Проспект Свободи 6 . Загальна площа приміщення 830.5 м², в яку входить: 1. підвал 380,7 м² 2. перший поверх 299,3 м² 3. антрисоль 150,5 м² До приміщення проведений окремий кабель , який забезпечує потужність 132 кВат електроенергії. У 2022 році, в приміщені були замінені повністю зовнішні вітрини, з пятьма окремими входами ,які зменшили тепловтрати і дали можливість, у разі потреби поділити дане приміщення. Від часу зведення нового будинку в радянські часи і у перші роки роки незалежності тут містилося надзвичайно популярне кафе “Червона Шапочка”, яке потім було перейменовано на “Біля фонтану”, в 2006 році у цьому будинку відкрили ресторан японської кухні “Острів суші”., в даний час ресторан "CITY BUFFET" . Ціна: 5 500 000 $ США (плюс податки )

Рекомендовано для Вас