Меню
Франківський район

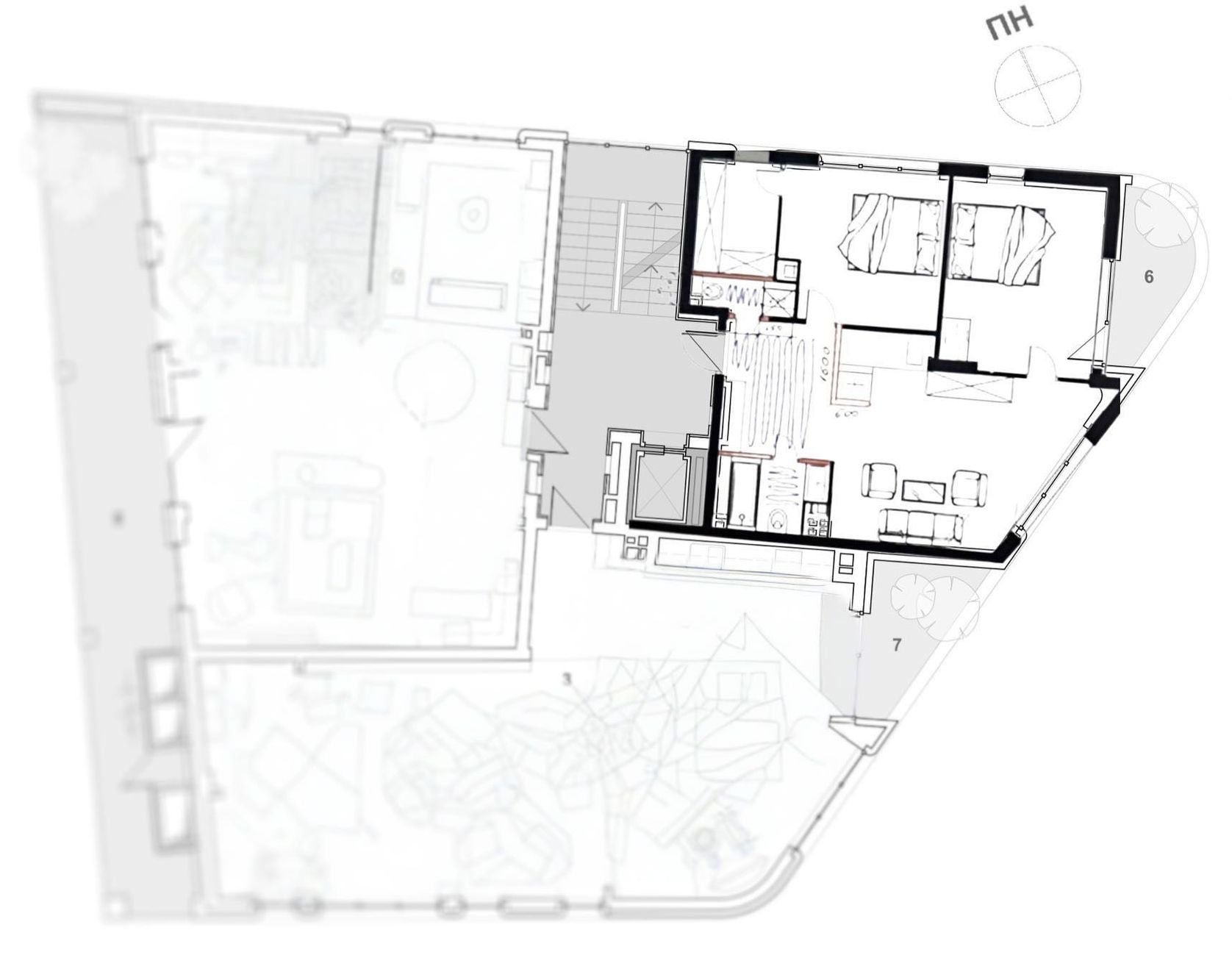
Продам 3-кімнатну квартиру на в. Проста у Львові

  • 3 кімнат
  • 48 м²
  • 1
2 675 800,00 грн
Віталій Дубіна Спеціаліст з продажу
Опис

3-кім. кв-ру підігрів підлоги, натяжні стелі, єврошпалери, техніка нова, ламінат, меблі нові, німецька кухня, балкон на решітку, парк., екскл. кап. єврорем. майже пол. кв. нов. буд. нов. дах/фас., підвал 6,5 м.кв.

Рекомендовано для Вас