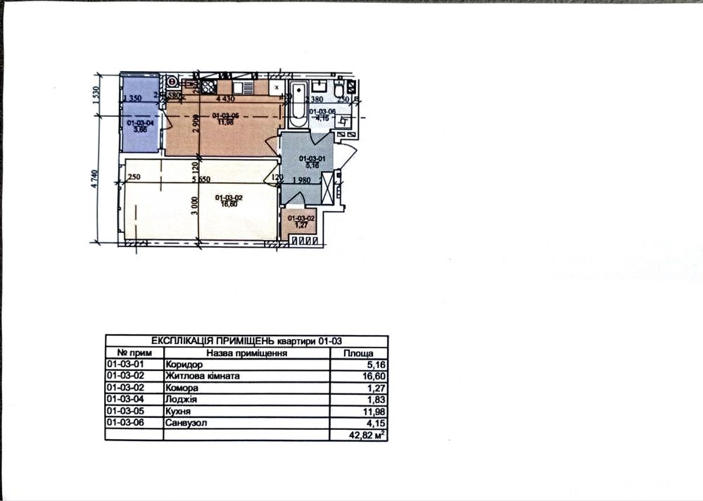
Квартира 1 кімнатна Галжитлобуд Трускавецька 7 пов 42 м кв
- 1 кімнат
- 42 м²
- 7 з 9












1 кімнатна квартира ( не апартаменти) Галжитлобуд у збудованому будинку Комплекс заселений частково, з повністю працюючою інфраструктурою Заплановане введення в експлуатацію: весна 2026 року Основні характеристики: • 7-й поверх секція Є • Правильне планування • Газ • Лоджія • Індивідуальне опалення • Радіатори • Стяжки • Поштукатурені стіни Переваги: • 20 хв пішки до Вікторії Гарденс, 5 хв на авто • Сучасний житловий комплекс: дитячі майданчики, власний садочок та паркувальні місця . індивідуальне газове опалення • Зручне розташування • Інфраструктура вже працює •. Будинок збудований, продаж по переуступці