Меню
Шевченківський район

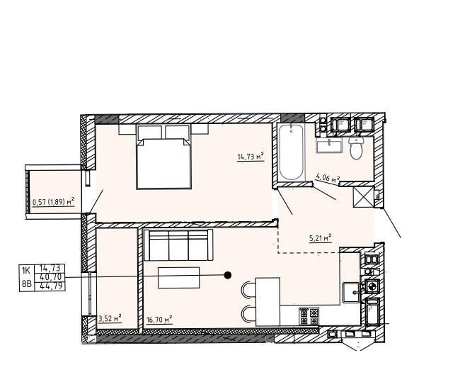
Продаж 1 кімнатної квартири у ЖК Family House Орлика

  • 1 кімнат
  • 44 м²
  • 4 з 5
2 337 050,00 грн
Каріна Русєва Спеціаліст з продажу та оренди
Опис

Продаж 1 кімнатної квартири у житловому комплексі Family House, на Пилипа Орлика. Об'єкт будується поряд з Замарстинівським парком. Секція В - перший будинок на здачу в даному ЖК. Здача на 3 квартал 2026 року. Будинок всього 5 поверхів. Клас: комфорт. Стіни: цегла. Утеплення: пінопластом. Індивідуальне газове опалення. Висота стелі: 2.7 м. Паркінг: гостьовий, підземний з ліфтом. Дана квартира розташована на 4 поверсі, вікна у двір. Площа 44,79 м2. Ціна за метр 1200$. Вартість квартири 53 750$. Продаж по переуступці.

Рекомендовано для Вас