Меню
Сихівський район

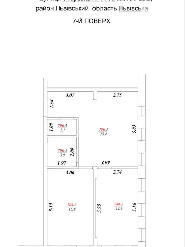
Продається 3кім.квартира ЖК Леополь Таун

  • 3 кімнат
  • 86 м²
  • 6 з 7
5 237 700,00 грн
Руслан Прийма Спеціаліст з продажу та оренди
Опис

Продається простора 3-кімнатна квартира в ЖК “Leopold Town” Адреса: вул. Стрийська, 111 Е Квартира розташована на 6-му поверсі з 7, у обжитому та теплому будинку. Загальна площа — 86 м², продумане планування забезпечує комфорт для всієї родини. Планування: • 3 окремі кімнати • кухня • 2 санвузли • великий коридор • простора лоджія, ідеальна для відпочинку теплими літніми вечорами Технічні характеристики та переваги: • індивідуальне опалення • домофон, інтернет • будинок повністю заселений, дуже теплий • ОСББ з відповідальним управлінням • підігрів ринв даху • великі панорамні вікна з відкритим видом, який неможливо забудувати Територія комплексу: • доглянутий двір із зеленими насадженнями • великий дитячий майданчик • спортивний майданчик • дитячий садочок • численні магазини • поруч парк та озеро Інфраструктура району — розвинена та зручна для життя. Бонус для покупця: у подарунок — готовий дизайн-проєкт вартістю 3 000–4 000 $, за яким можна виконати перепланування та отримати 2-кімнатну квартиру з великою кухнею-студією (за бажанням).

Рекомендовано для Вас