Меню
Шевченківський район

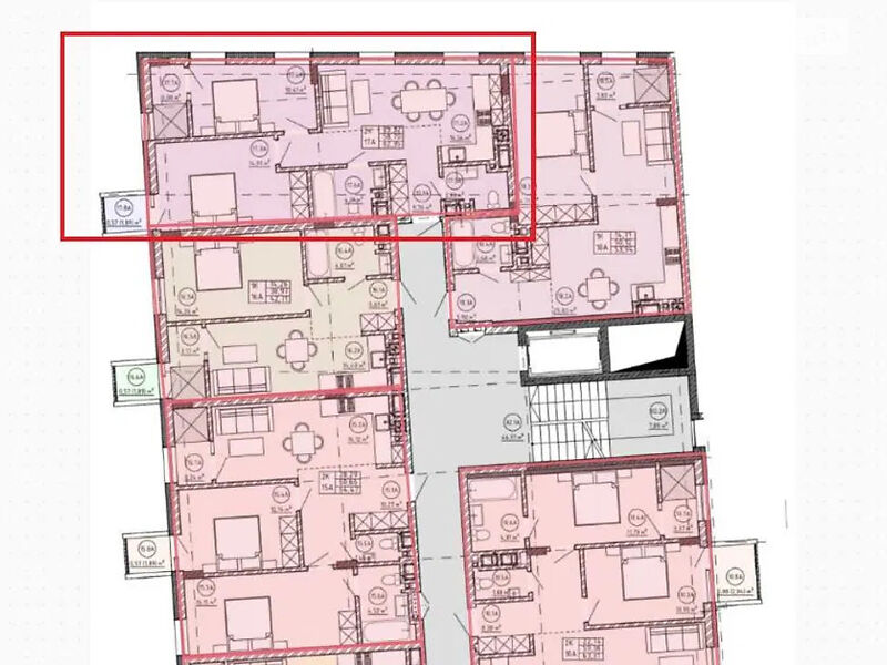
продаж квартири

  • 2 кімнат
  • 62 м²
  • 4 з 6
3 780 150,00 грн
Анастасія Головатчик Спеціаліст з продажу та оренди
Опис

Здача 4кв 2026 Ведуться внутрішні роботи - стяжка, сантехніка і тд Продаж по переуступці Квартира 2х кімнатна - 62, 35 м2, площа кухні 16, 56 м2 4 поверх з 6 Знаходиться на вул.Орлика за готелем СВ Поруч замарстинівський парк - з балкону гарний краєвид Поряд з ЖК проектований дитячий садочок Малоповерхова забудова території, що розташована у лісопарковій зоні Шевченківського району Цегляні стіни утеплені пінополістиролом та мінеральною ватою під декоративне оздоблення Квартири здаються з чорновим ремонтом Для опалення у квартирах встановлені індивідуальні котли Панорамні вікна, повністю скляні балконні та вхідні групи Незважаючи на малу поверховість (6 поверхів) будинок буде обладнаний ліфтом

Рекомендовано для Вас