Франківський район
2 499 000,00 грн
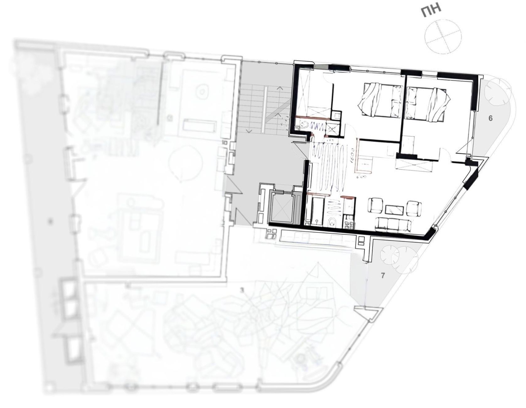
Продаж 1-кімнатної квартири в ЖК на Трускавецькій Франківський район
- 1 кімнат
- 41 м²
- 8 з 15





















Опис
Продаж 1-кімнатної квартири в ЖК на Трускавецькій, вул. Трускавецька, Франківський р-н. Забудовник ГалЖитлоБуд. Секція Б. Сусіди поряд вже зробили ремонт. Будинок цегляний. Не кутовий. Сонячна сторона, вікна виходять на південь. Поверх 8/15. Загальна площа 41м2 (є детальне планування квартири). Є дуже простора засклена лоджія через кімнату та кухню. Вже є котел, батареї, стяжка та штукатурка. Ціна: 60000дол. + торг. Пропозиція від АН. Є детальний відеоогляд квартири та прибудинокової території. Огляди у зручний для вас час.