Меню
Солонка

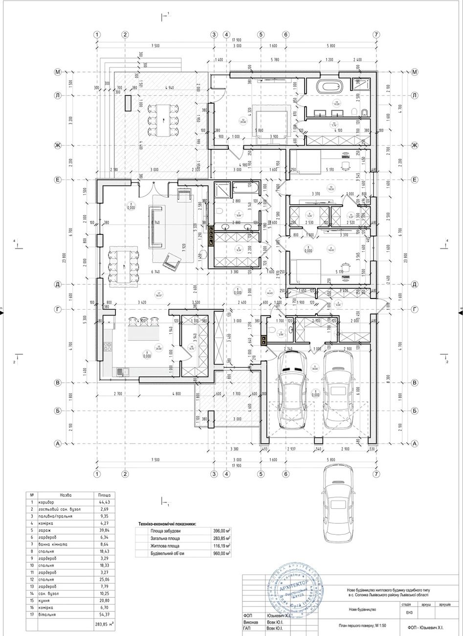
Будинок одноповерховий Солонка

  • 4 кімнат
  • 12 м²
25 882 300,00 грн
Костянтин Науменко Спеціаліст з продажу та оренди
Опис

Продаж одноповерхового будинку 12 с. ділянка (30×40) Дуже гарна ділянка піднята з гарним панорамним видом на південь. Будинок практично готовий. Фасад зроблено залишився лише баранек. В середині все поштукатурена опалення, електрика, сантехніка зроблено. Залишається внутрішні роботи шпаклівка, плитка Плитка куплена. Дизайн проект зроблений. Подвір'я лише доробити ландшафт та бруківку. Мережі всі розведені. Будинок збудовано з цегли повнотілої. Вікна rehau 8 камерний профіль з енерго зберігючими - гартованими склопакетами. Більше інформації по телефону. Гарна велика тераса Площа забудови 390 м2.

Рекомендовано для Вас