Меню
Галицький район

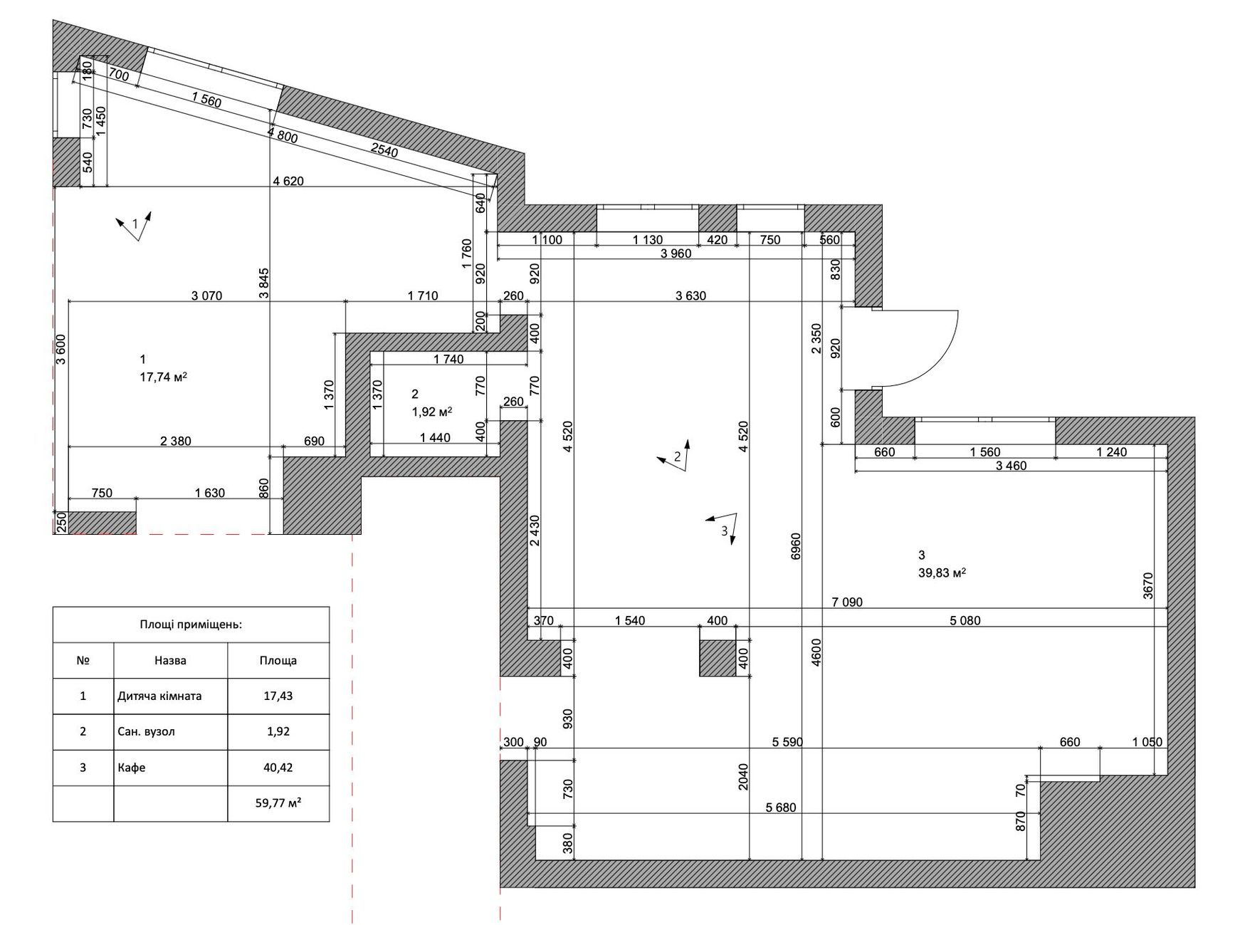
Оренда офісних приміщень по вулиці Костюшка у Галицькому районі

  • 2 кімнат
  • 59 м²
  • 2 з 3
25 901,00 грн
Роман Терета Спеціаліст з продажу та оренди
Опис

Оренда офісного приміщення у центрі Львова по вулиці Костюшка. Єтакі вільні площі як: 59м2(потребує ремонту), 55м2(з ремонтом) та дві кімнати 35м2 та 10м2 з ремонтом. Офісний будинок, гарний тихий дворик. Вхід закритий (електронний замок) Пропозиція від агенства нерухомості. Ціна 10$ за м2+кп.

Рекомендовано для Вас