Меню
Бірки

Продаж котеджу спарка в с.Бірки

  • 4 кімнат
  • 2 м²
  • 1 з 2
4 760 800,00 грн
Наталія Беднарчик Спеціаліст з оренди
Опис

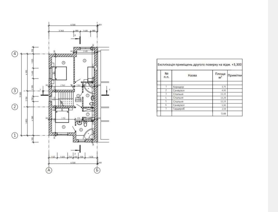
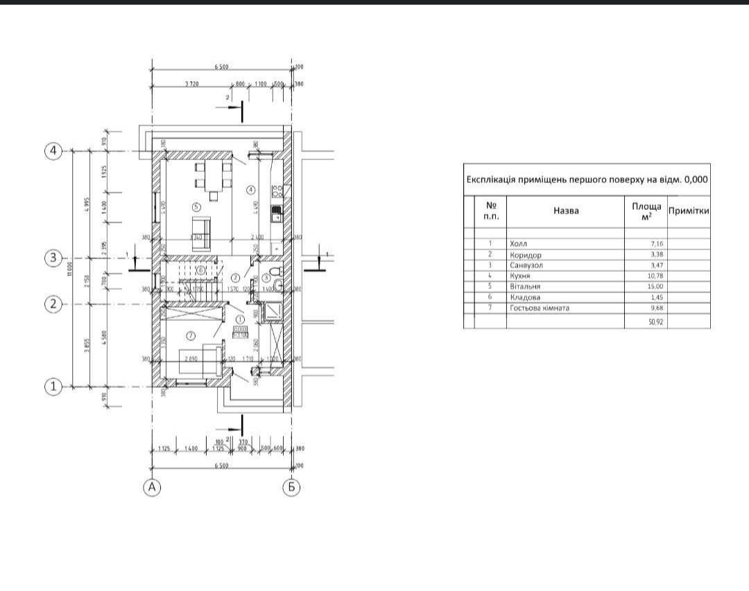
Продаж двох котеджів в Бірках( на межі з Брюховичами). Локація: вул. В. Стуса. Мальовниче місце, будинок з виглядом на ліс та церкву св. Володимира і Ольги. Поряд продуктові, побутові та будівельні магазини, аптека. Зовсім поряд зупинки громадського транспорту. Площа:110 м2 Ціна: 110 000 тис $ Будинок збудований з цегли, утеплений пінопластом 15 см, вмонтовані дорогі пластикові вікна та вхідні двері. Заведені комунікації, газ, світло 6 кВт, каналізація, скважина. Площа земельних ділянок 2.5 та 2.67 соток, є місце для терас, зелених зон, 2 паркомісця. Паркан обгороджений бляхою, відсувні ворота, хвіртки. На першому поверсі велика кухня-вітальня, санвузол, технічне приміщення, кімната. На другому поверсі гардероб, 2 санвузли та З ізольовані кімнати. Залиті сходи, поштукатурено стіни, є вихід на повноцінне горище. Будинок вартий уваги!

Рекомендовано для Вас